Concept Modular House
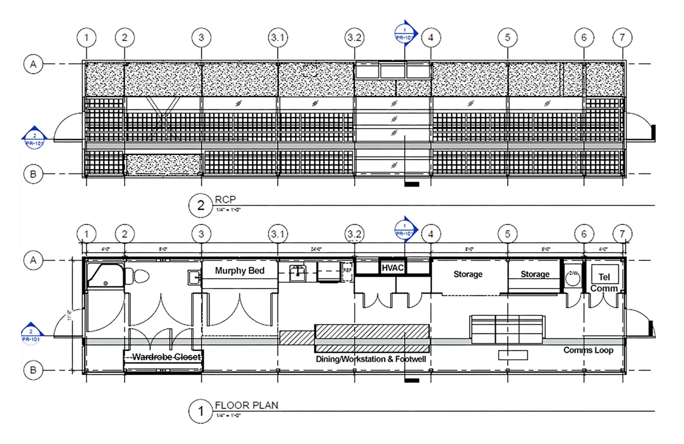
NOMAD is a prototype for a prefabricated transportable modular house. House dimensions conform to permissible dimensions to transport wide loads on public road systems (12’ x 12’ x 48’). NOMAD was conceived & built in a design-build studio at The Catholic University of America, School of Architecture, Washington DC, led by Professors Douglas Frederick and Ann Cederna. The tubular steel structure includes an 18″ high lower-level service zone for house systems, HVAC, plumbing, communications, and power.
Exterior cladding consists of metal panel and glass. The house design has a backbone of systems and functions that are prevailingly solid on one side, contrasted with floor-to-ceiling glass and sun-screened skylights in an open zone that welcomes natural light and view. The structural steel frame, exterior panels, and glass come together in a complementary relationship with natural wood interiors inspired by the Japanese teahouse. Trucked in and craned onto four support points above and below, the modular house is easily set into a wide variety of contexts from urban to rural.
House Functions
House entry is available at either end. Within the compact interior layout, the kitchen occupies two of the 4′ modules and includes a sink, fridge/freezer, electric oven and cooktop, plus a microwave. The dining table and footwell serve a double function as a workstation, connected to the house communications loop (see details below). House functions & closets have hidden doors & bathrooms that when opened, also separate space as needed. The opening of closet doors reveals additional furniture (such as the fold-down Murphy bed and storage systems), and also allows separation for privacy (toilet & shower). One of the 4′ module closets houses the all-in-one washer – dryer unit.
Data & Power Loop
The 18″ high lower-level service zone also supports the house computers and reconfigurable communications systems. Communications & cabling are housed within a cable-tray loop distributing wrapping through the floor, end walls, and ceiling, also traveling through a central table (with seating well) with built in ports for plug-in computer access. Tied into this loop, a central computer rack in a dedicated closet is the nerve center for house communications, entertainment, and systems monitoring (HVAC, security, CCTV, and access control).


